SKLYPAI | KRETINGA | Kretingos r. sav.
PENKININKŲ G., Kretinga | Sklypas | 9.17 a. | Kretingos r. sav.
Kaina: 13700 € 1494 €/a.
Skelbimo ID: |
69167 |
Kaina: |
13700 € |
Adresas: |
Kretinga, Penkininkų g., Kretingos r. |
| Pažiūrėti Žemelapyje | |
Sklypo plotas: |
9.17 a. |
Sklypo paskirtis: |
Namo statybai |
Komunikacijos: |
Yra |
Aprašymas
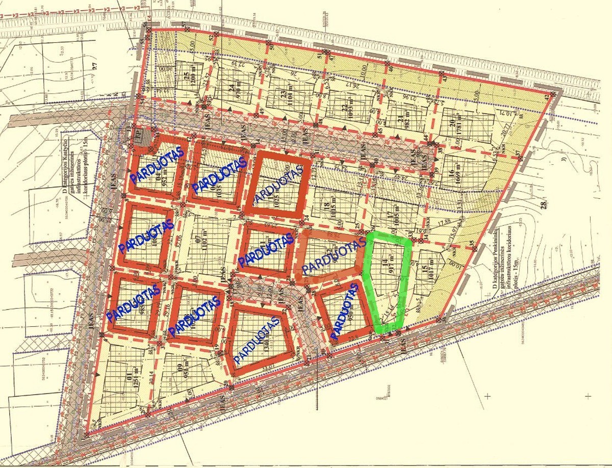
ŽALIAI APVESTAS SKLYPAS (FOTO-1) adresas Penkininkų g.74 (9.17a)( Plane Nr.14) Kretinga. Penkininkų g. ir Kastyčio g., parduodami įvairaus dydžio sklypai nuo 9,17 aro iki 17,81 aro. Sklypai yra miesto teritorijoje. Šiuo metu išduodami leidimai namo statybai su vietiniais valymo įrenginiais ir išgriebiamąją duobe, galima statyti dviejų su mansarda iki 10 metrų aukščio gyvenamąjį namą su leistinu iki 30 procentų žemės sklypo užstatymu. Privesta elektra ir pastatytos apskaitos dėžutės. Dešit sklypu parduota. Šiuo metu pastatyti ir statomi šeši namai Geras susisiekimas su miestu individualiu ir visuomeniniu transportu. Nuo kvartalo iki autobuso sustojimo Bajoruose, Klaipėdos g. tik ~1,5 km ir apie ~ 3 km iki Palangos pl. Labai graži aplinka, netoli Tenžės upė. Parduodamo sklypo 1 aro pardavimo kaina TIK 1500 €. Perki tik vieną 9.17 arų sklypą, kaina 13700 €. PERKI DU (gali rinktis), UŽ ABU sklypus moki KAINA TIK 1500 € uż viena ara
Bendra informacija
Geras privažiavimas, yra elektra, yra komunikacijos, šalia gyvenamieji namai
Vlada Simonaitienė
+37060027085
+370 46 411673
vlada@avitera.lt

UAB "AVITERA"
Adresas: S. Daukanto 24a, Klaipėda
Tel / Faksas: (8 46) 411673
Mob: +370 60027085
El. paštas: info@avitera.lt
Panašūs skelbimai SKLYPAI | KRETINGA | Kretingos r. sav.
9.55 a. | Namo statybai
Parduodamas sklypas Penkininkų g. 10 arų, Kretinga, iki miesto centro ~ 5km KITA INFORMACIJA Sklypas randasi šali...
Parduodamas sklypas Penkininkų g. 10 arų, Kretinga, iki miesto centro ~ 5km KITA INFORMACIJA Sklypas randasi šali...
11 500 €
9.7 a. | Namo statybai
GERAS PASIULYMAS Kretingoje 9.70 arų TIK 11640 €. Kretingos mieste, Kastyčio g. 8J parduodamas 9.70 arų namų valdos skly...
GERAS PASIULYMAS Kretingoje 9.70 arų TIK 11640 €. Kretingos mieste, Kastyčio g. 8J parduodamas 9.70 arų namų valdos skly...
11 640 €
9 a. | Namo statybai
Parduodame 9 arų sklypą Kretingoje, Tenžės / Penkininkų gatvėje. Sklypo paskirtis - mažaaukščių gyvenamųjų namų statybai...
Parduodame 9 arų sklypą Kretingoje, Tenžės / Penkininkų gatvėje. Sklypo paskirtis - mažaaukščių gyvenamųjų namų statybai...
14 000 €







