SKLYPAI | KLAIPĖDA
SAUSIO 15-OSIOS G., Klaipėda | Sklypas | 24.96 a.
Kaina: 2000000 € 80128.21 €/a.
Skelbimo ID: |
296743 |
Kaina: |
2000000 € |
Adresas: |
Klaipėda, Centras, Sausio 15-osios g., Klaipėdos m. |
Sklypo plotas: |
24.96 a. |
Sklypo paskirtis: |
Komercinė |
Komunikacijos: |
Yra |
Aprašymas
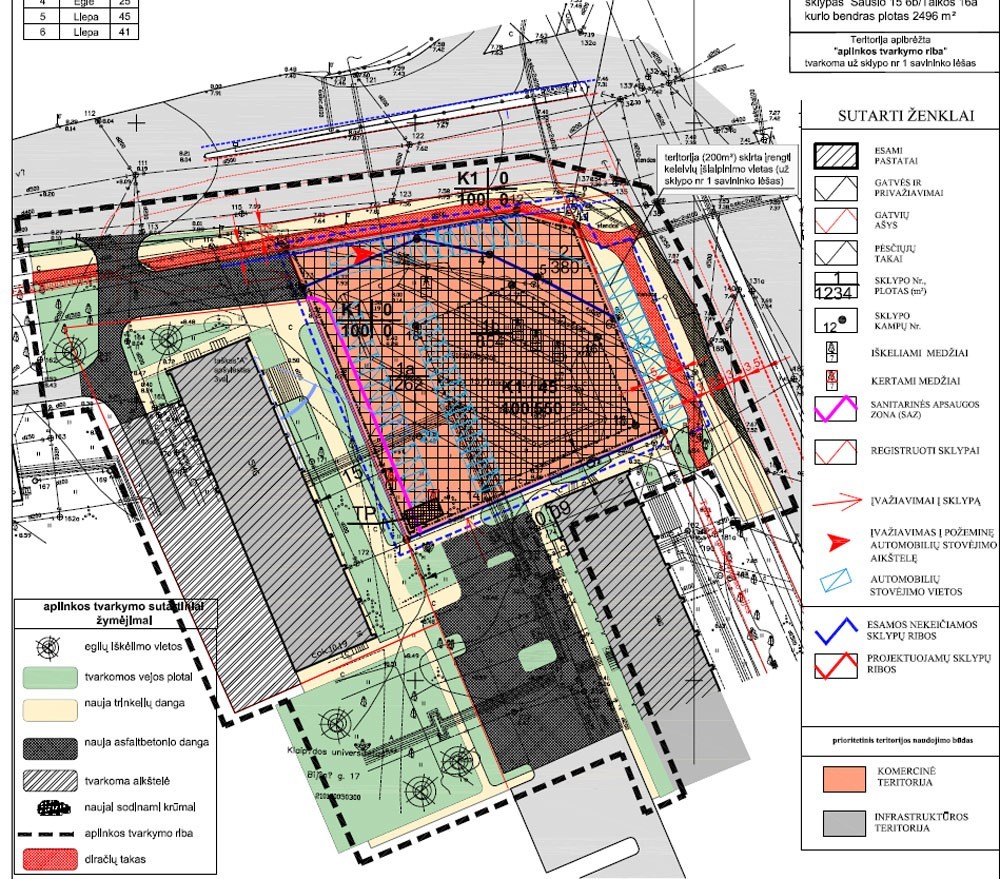
PARDUODAMAS 24.96 ARŲ SKLYPAS KLAIPĖDOS CENTRE SU STATYBOS LEIDIMU 11 AUKŠTŲ STATINIUI SU POŽEMINIU PARKAVIMU !!! Komercinis sklypas miesto centre Sausio 15 g. ir Taikos pr. sankryzoje, priesais 'Avitela' prekybos centra ir 'Nordea'banka. Sklypas su statybos leidimu 11 aukstu pastatui statyti. Parengtas techninis projektas, atlikta projekto ekspertize. Galimas aukstingumas 45 metrai. Bendras pastato plotas 6024 kv.m.. Kaina: 2000000 Eu. Klaipėda. Agentūros ID 17-3KL07
Bendra informacija
Geras privažiavimas, yra komunikacijos
Vlada Simonaitienė
+37060027085
+370 46 411673
vlada@avitera.lt

UAB "AVITERA"
Adresas: S. Daukanto 24a, Klaipėda
Tel / Faksas: (8 46) 411673
Mob: +370 60027085
El. paštas: info@avitera.lt



