DETALI PAIEŠKA
Tipas
Vietovė
Kaina
Kaina už m2
Plotas
Aukštas
Aukštų skaičius
Aukštų skaičius
Pastato tipas
Šildymo tipas
Būklė

NAMAI | RADAILIAI | Klaipėdos r. sav.

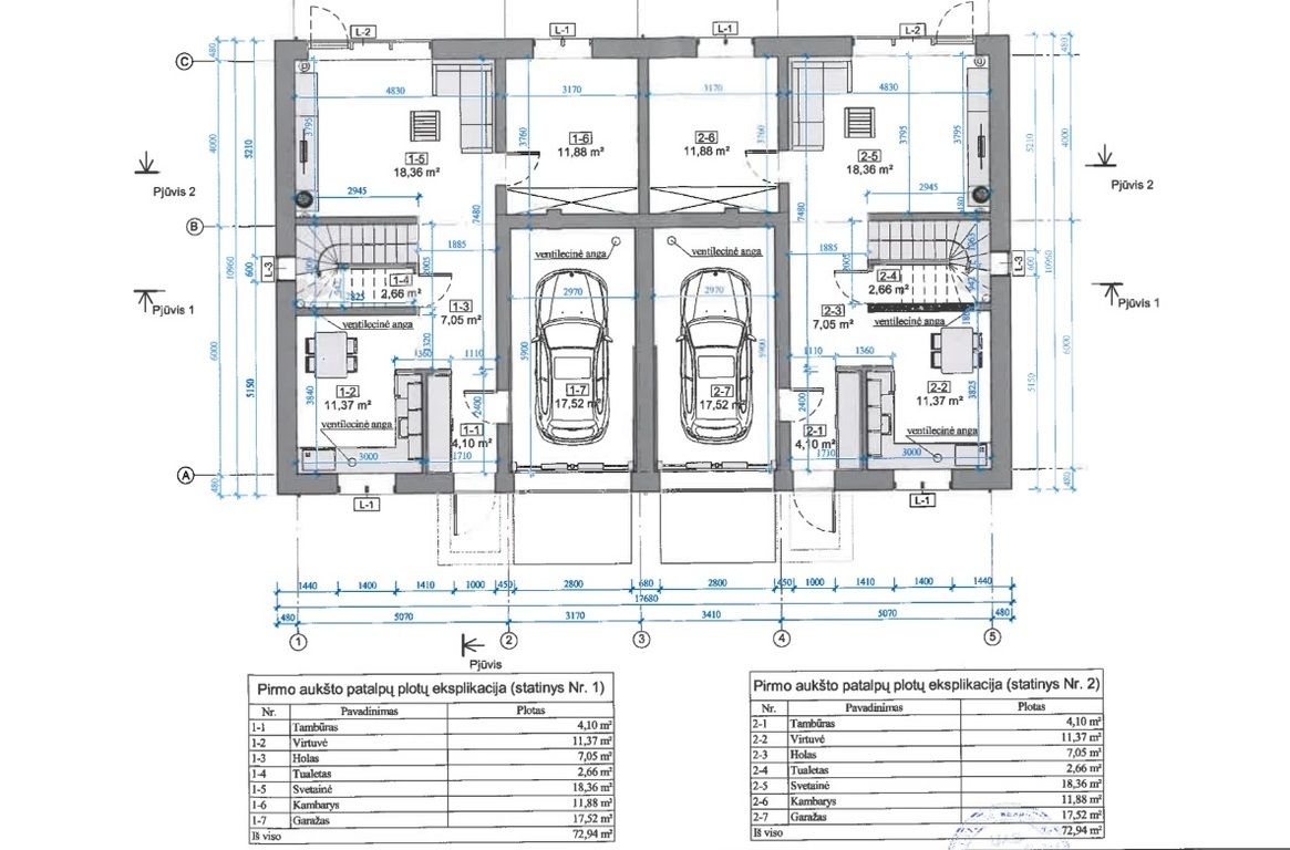
VAINOČIŲ G., Radailiai | Namas | 5 k. | 128 m² | Klaipėdos r. sav.

Kaina: 164900 € 1288.28 €/m²

Skelbimo ID:

1360126

Kaina:

164900 €

Adresas:

Radailiai, Vainočių g., Klaipėdos r.

Plotas:

128 m²

Sklypo plotas:

4 a.

Kambarių skaičius:

5

Aukštų

2

Šildymas:

Kitas

Būklė:

Neįrengtas

Pažymėti skelbimą
Spausdinti skelbimą
Dalintis
6

Aprašymas

Jūsų ramybės oazė Radailiuose!
Ieškote jaukios ir erdvios vietos gyventi gamtos apsuptyje, bet nenorite nutolti nuo miesto patogumų? Šis 5 kambarių sublokuotas namas Vainočių gatvėje, Radailių kaime, Klaipėdos r. savivaldybėje – puikus pasirinkimas šeimai ar kiekvienam, vertinančiam komfortą ir ramybę.
127,64 kv. m namo dalis išsidėsčiusi per du aukštus, todėl kiekvienas šeimos narys ras savo kampelį. Erdvi svetainė kviečia vakaroti su artimaisiais, o patogiai suplanuoti kambariai suteiks privatumo ir jaukumo. 4 arų sklypas leis mėgautis žaluma bei laisvalaikiu gryname ore. Prie namo suplanuota lauko terasa – puiki vieta rytinei kavai ar jaukiems vakarams su draugais.
Jūsų automobiliui suplanuotas garažas (17,52 kv. m), kuriame patogiai tilps viena transporto priemonė. Namas turės visus reikalingus inžinerinius tinklus – vandenį ir elektrą, tad galėsite iš karto įsikelti ir pradėti gyventi be rūpesčių. Taip pat įrengta vonios patalpa, kurioje galėsite atsipalaiduoti po dienos darbų. Geras privažiavimas leis patogiai pasiekti namus bet kuriuo metų laiku.
Radailių kaimas garsėja savo ramiu, draugišku kaimynų bendruomene bei puikiai prižiūrėta aplinka. Čia tvyro tikra kaimiška ramybė, tačiau vos kelios minutės kelio skiria jus nuo visų Klaipėdos miesto patogumų. Atvirų žalių erdvių ir natūralios gamtos grožis sukuria malonią aplinką kasdieniam gyvenimui bei poilsiui. Tai puiki vieta auginti vaikus ar tiesiog mėgautis harmoningu gyvenimu gamtos apsuptyje.
Gyvenkite patogiai ir ramiai – mėgaukitės nuosavu kiemu, žaluma, privatumu ir artumu Klaipėdai. Ši vieta ypač patraukli šeimoms ir tiems, kurie siekia balanso tarp miesto ir kaimo gyvenimo.
Komunikacijos:
- elektra - yra
- vandentiekis - vietinis
- kanalizacija - vietinė
- šildymas grindinis - oras-vanduo
Namas šiuo metu pradėtas statyti. Statybų pabaiga 2025 gruodis. Baigtumas 84%.
Pasinaudokite galimybe įsikurti jaukioje, šviesioje ir draugiškoje aplinkoje! Susisiekite ir sužinokite daugiau apie šį puikų pasiūlymą Radailiuose!

Edita Markauskaitė

+37067334381
edita@ntpulsas.lt
Laukiam jūsų klausimų

MB "Per mare"
Klaipėdos pl. 62A, 00111 Palanga
Mob. +370 673 34381
El. paštas: info@ntpulsas.lt