DETALI PAIEŠKA
Tipas
Vietovė
Kaina
Kaina už m2
Plotas
Aukštas
Aukštų skaičius
Aukštų skaičius
Pastato tipas
Šildymo tipas
Būklė

PATALPŲ NUOMA | KLAIPĖDA

ŠILUTĖS PL., Klaipėda | Patalpos | 625.28 m²

Kaina: 3126 € 5 €/m²

Skelbimo ID:

1346799

Kaina:

3126 €

Adresas:

Klaipėda, Šilutės pl., Klaipėdos m.

Plotas:

625.28 m²

Aukštas:

0 iš 1

Būklė:

Tvarkingas

Pažymėti skelbimą
Spausdinti skelbimą
Dalintis
9

Aprašymas

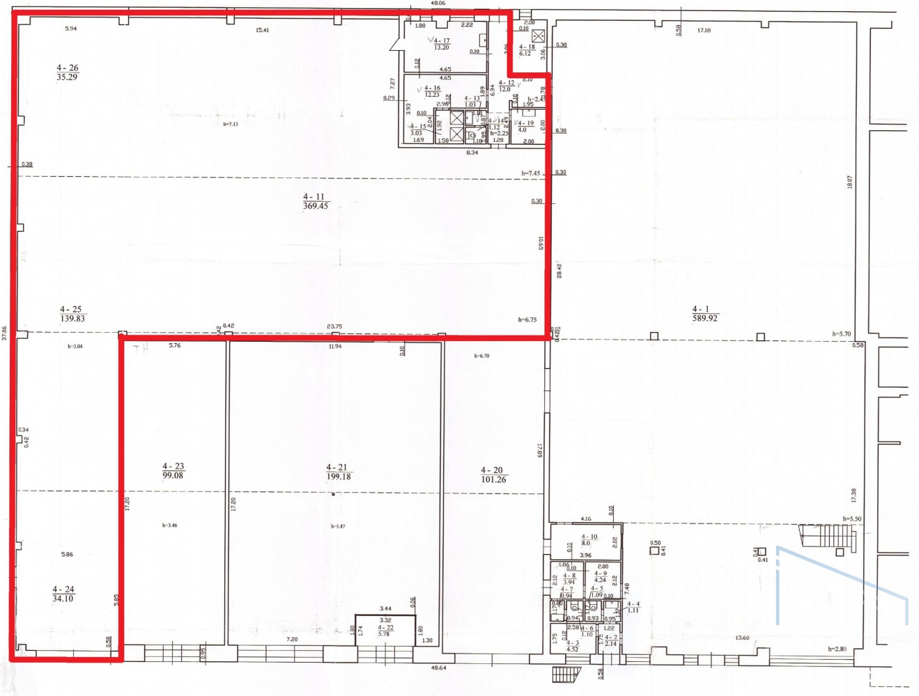
Išnuomojamos sandėliavimui - gamybai - prekybai tinkančios 625.28 kv.m. ploto patalpos adresu Šilutės pl. 51, Klaipėda. Patalpos yra patogioje, komerciškai patrauklioje vietoje. Šalia išvažiavimas į automagistralę Klaipėda – Vilnius. Patalpos yra veikiančioje prekybinėje teritorijoje. Patalpose sumontuota autonominė apsaugos sistema bei elektros apskaitos skaitikliai, įrengti sandėlio pakeliami vartai. Sandėlio patalpos yra nešildomos. Šalia patalpų yra nemokama automobilių stovėjimo aikštelė. Visa teritorija saugoma perimetro apsaugos sistema. Informacija Plotas: 625.28 kv.m Aukštas: 1-as Patalpos: 2 Patalpų paskirtis: Gamybai/sandėliavimui/prekybai Patalpų būklė: Tvarkingos Patalpų šildymas: Dujinis Patalpų adresas: Šilutės pl. 51, Klaipėda Kaina: 3126 EUR + PVM 1 kv.m kaina: 5.00 EUR + PVM

Audronė Užandienė

+37067057857
+370 (670) 57 857
audrone@pamario-nt.lt
Laukiam jūsų klausimų

UAB "PamarioNT"
Pamario NT | Taikos pr. 52C - 601, Klaipėda 
Mob. +370 648 52180
El. paštas: info@pamario-nt.lt

Panašūs skelbimai PATALPŲ NUOMA | KLAIPĖDA

600 m² | Administracinės | Tvarkingas
Geroje ir strategiškai patogioje pramoninio rajono vietoje nuomojamos komercinės prekybinės, sandėliavimo patalpo...
2 900 €