SKLYPAI | RUSLIAI | Klaipėdos r. sav.
MEDAUS G., Rusliai | Sklypas | 10.41 a. | Klaipėdos r. sav.
Kaina: 10410 € 1000 €/a.
Skelbimo ID: |
1317350 |
Kaina: |
10410 € |
Adresas: |
Rusliai, Medaus g., Klaipėdos r. |
Sklypo plotas: |
10.41 a. |
Sklypo paskirtis: |
Namo statybai |
Komunikacijos: |
Nėra |
Aprašymas
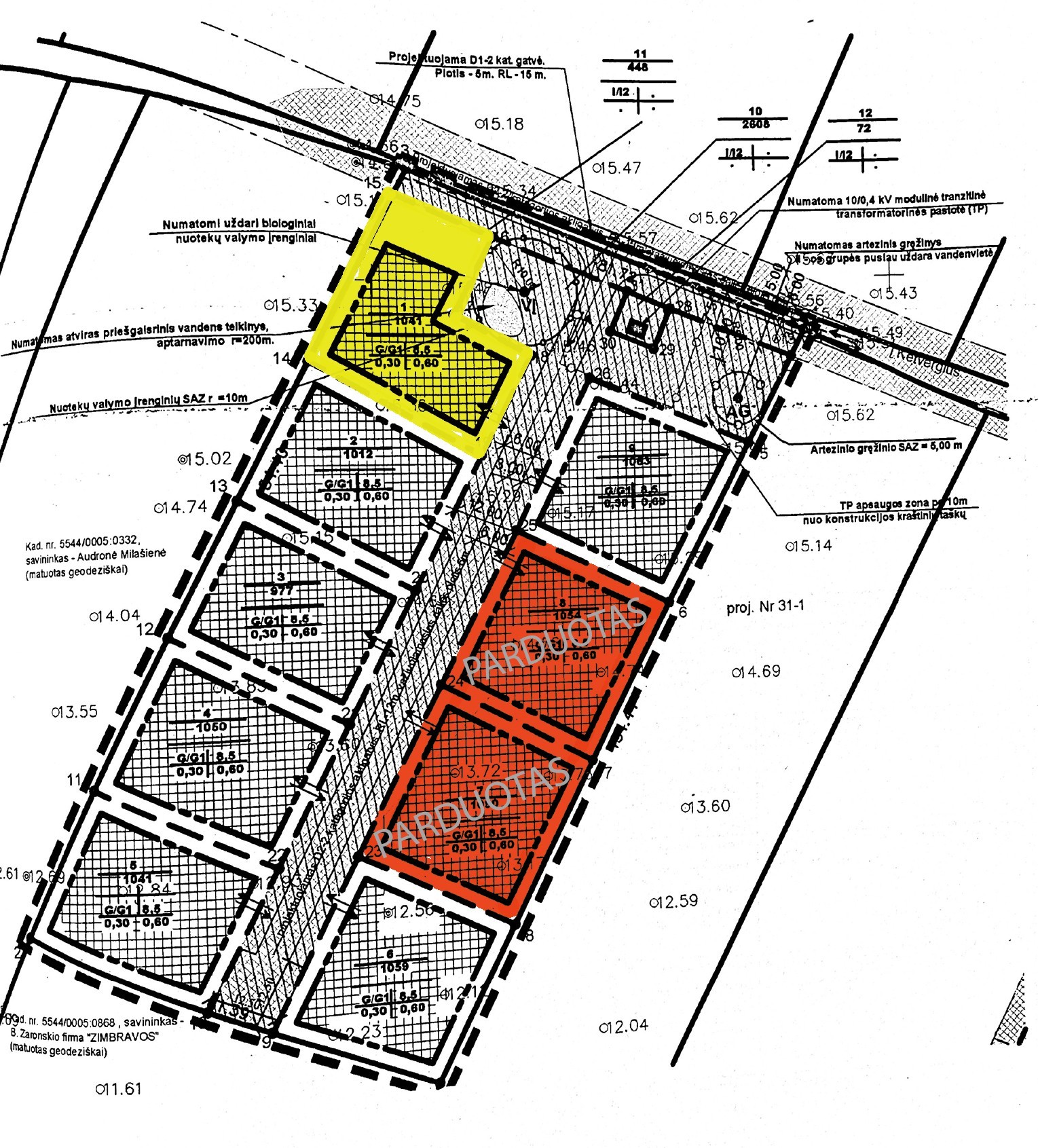
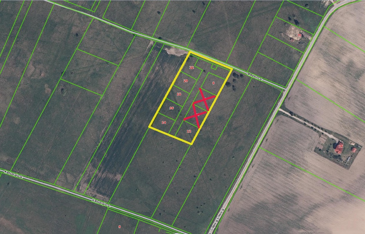
Klaipėdos r. Ketvergiai Ruslių k. Medaus g. parduodami namų valdos sklypai. Kvartale suprojektuoti ir patvirtinti detaliuoju planu 9 sklypai, mažaaukščių gyvenamųjų namų statybai ir vienas infrastrukturos sklypas, komunikacijų tinklams. Kvartalas mažaaukščių gyvenamųjų namų statybai. Yra kadastriniai matavimai, sklypų bylos, adresas, gatves pavadinimas Medaus g. Graži aplinka, geras susisiekimas yra gatvė iki pat sklypu kvartalo. Parduodamu žemės sklypu vieno aro pardavimo kaina 1000 €./aras. Komunikacių nėra. Vieno iš parduodamų sklypų, 10.41 aro sklypo kaina 10.420 €. Bendras parduodamu sklypų kiekis: 7 sklypai ir jų plotai detaliajame pane: Nr.1 - 10.41 a (Medaus g.22); Nr.2 -10.12 a (Medaus g.20); Nr.3 – 9.77 a (Medaus g.18); Nr.4 – 10.60 a (Medaus g.16); Nr.5 – 10.41 a (Medaus g.14); Nr.6 – 10.59 a (Medaus g.12) ; Nr.9 – 10.63 a (Medaus g.6); Agentūros ID kodas 414400 BENDRA INFORMACIJA: Bendras parduodamu sklypų kiekis: 7 sklypai ir jų plotai detaliajame pane: Nr.1 - 10.41 a (Medaus g.22); Nr.2 -10.12 a (Medaus g.20); Nr.3 – 9.77 a (Medaus g.18); Nr.4 – 10.60 a (Medaus g.16); Nr.5 – 10.41 a (Medaus g.14); Nr.6 – 10.59 a (Medaus g.12) ; Nr.9 – 10.63 a (Medaus g.6); Paskirtis – Kita, Gyvenamosios teritorijo Atlikti kadastriniai matavimai; Sklypų užstatymo tankis: 0.30; Sklypų užstatymo intensivumas: 0.60; Pastatų aukštingumas: 8.5 metro; 1 aro Kaina – 1000 € Sklypas Nr.1 (Medaus g.22) 10.41 a sklypo kaina 10.420 € NT REGISTRO CENTRO IŠRAŠO DUOMENYS: Sklypo adresas: Klaipėdos r. sav. Ruslių k. Medaus g. 22; Kadasrtinė vietovė: Lėbartų k.v. Pagrindinė naudojimo paskirtis:Kita; Naudojimo būdas: Mažaaukščių Vienbučių ir dvibučių gyvenamųjų namų statybų teritorijos; Bendras plotas: 0.1041 ha; Žemės ūkio naudmenų našumo balas: 31.0 Žemės sklype įrengtos valstybei prikausančios melioracijos sistemos bei įrenginiai 0.1041 ha; Matavimų tipas: Žemės sklypas suformuotas atliekant kadastrinius matavimus KOMUNIKACIJOS: Elektra: NĖRA; Vandentiekis: NĖRA; (Numatytas vietinis kol bus atvesti miesto komunaliniai tinklai); Nuotekos: NĖRA; (Numatytas vietinis kol bus atvesti miesto komunaliniai tinklai); Lietaus kanalizacija: NĖRA ( Pagal Detaliojo plano sprendimus); Suprojektuotas statybinis kelias: Medaus g. ATSTUMAI: Klaipėda ~ 11 km iki Jakų žiedo Priekulė Centras ~ 12 km Dituvos k. ~ 7 km PRIVAŽIAVIMAS: Privažiavimas – asfaltuotu kelių Klaipėda-Ketvergiai-Agluonėnai-Veviržėnai (N 2202) (Klaipėdos g. iki Ketvergių ir Liepų g. į Ruslių k. Medaus g. Netinka šis sklypas? Turiu daugiau pasiūlymų: Gindulių, Mazūriškių, Klipščių, Tauralaukio, Kalotės, Svencelės, Drevernos, Priekulės, Palangos, Kretingos, Gargždų, Šilutės, Rusnės vietovėse. Žemės ūkio, namų valdos, reakreacinės, komercinės, sodybai skirtų sklypų. Parašykite kokio sklypo ieškote, aš Jums atsiųsiu daugiau konkrečių pasiūlymų.
Vlada Simonaitienė
+37060027085
+370 46 411673
vlada@avitera.lt

UAB "AVITERA"
Adresas: S. Daukanto 24a, Klaipėda
Tel / Faksas: (8 46) 411673
Mob: +370 60027085
El. paštas: info@avitera.lt



