NAMAI NAUJOS STATYBOS | KLAIPĖDA
TAURO 6-OJI G., Klaipėda | naujos statybos Namas | 4 k. | 143 m²
Kaina: 214500 € 1500 €/m²
Skelbimo ID: |
1316993 |
Kaina: |
214500 € |
Adresas: |
Klaipėda, Tauralaukis, Tauro 6-oji g., Klaipėdos m. |
Plotas: |
143 m² |
Sklypo plotas: |
3.68 a. |
Kambarių skaičius: |
4 |
Aukštų |
2 |
Pastatymo metai: |
2023 |
Nauja statyba: |
Taip |
Namo tipas: |
Mūrinis |
Šildymas: |
Aeroterminis (oras - vanduo) |
Būklė: |
Dalinė apdaila |
Aprašymas
PARDUODAMAS MODERNUS A++ KLASĖS DVIBUTIS NAMAS SU DALINE APDAILA ***
Adresas: Tauro 6-oji , Klaipėda
BENDRA INFORMACIJA:
- Vieno namo plotas – 143m2+31m2 stoginė;
- Terasa vakarų pusėje;
- Sklypas 3,68 a;
- Asfaltuotas privažiavimas iki pat namo;
- Miesto vandentiekis bei kanalizacijos.
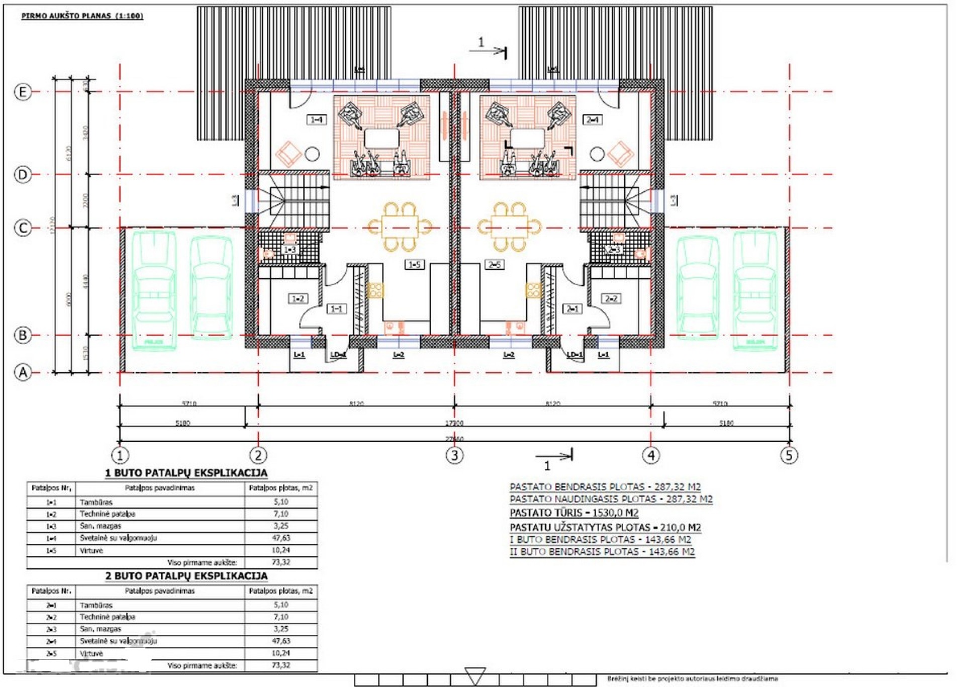
I a:
- Tambūras 5.1m2
- Techninė patalpa 7.1m2
- San. mazgas 3.25 m2
- Svetainė ir valgomasis su vitrininiais langais 47.63m2
- Virtuvė 10.24m2
II a:
- Kambarys 18.75m2 su atskira drabužine (7.78m2) bei atskiru san. mazgu (7.09m2)
- Du kambariai po 13m2
- San. mazgas 6.12m2
Į dalinę apdailą įeina modernus pilnas namo fasadas (vietomis uždėtas dekoras, kitur medinės fasadinės dailylentės arba meldorfer plyteles), HS sistemos terasiniai langai kiemo pusėje, sutvarkytas gerbūvis (tvora, išlygintas augalinis sluoksnis, trinkelės). Viduje: pirmas elektros instaliacijos etapas, santechnika, išvedžiotas grindinis šildymas, išbetonuotos grindys, įrengtos pertvaros, ištinkuotos sienos, rekuperacinės sistemos vamzdyno išvedžiojimas.
Kaina: 228 800 Eur (1 600 Eur/m2)
Adresas: Tauro 6-oji , Klaipėda
BENDRA INFORMACIJA:
- Vieno namo plotas – 143m2+31m2 stoginė;
- Terasa vakarų pusėje;
- Sklypas 3,68 a;
- Asfaltuotas privažiavimas iki pat namo;
- Miesto vandentiekis bei kanalizacijos.
I a:
- Tambūras 5.1m2
- Techninė patalpa 7.1m2
- San. mazgas 3.25 m2
- Svetainė ir valgomasis su vitrininiais langais 47.63m2
- Virtuvė 10.24m2
II a:
- Kambarys 18.75m2 su atskira drabužine (7.78m2) bei atskiru san. mazgu (7.09m2)
- Du kambariai po 13m2
- San. mazgas 6.12m2
Į dalinę apdailą įeina modernus pilnas namo fasadas (vietomis uždėtas dekoras, kitur medinės fasadinės dailylentės arba meldorfer plyteles), HS sistemos terasiniai langai kiemo pusėje, sutvarkytas gerbūvis (tvora, išlygintas augalinis sluoksnis, trinkelės). Viduje: pirmas elektros instaliacijos etapas, santechnika, išvedžiotas grindinis šildymas, išbetonuotos grindys, įrengtos pertvaros, ištinkuotos sienos, rekuperacinės sistemos vamzdyno išvedžiojimas.
Kaina: 228 800 Eur (1 600 Eur/m2)
Bendra informacija
Nauja statyba, prie asfaltuoto kelio, yra miesto transportas, aptvertas tvora, yra terasa, kiemas išklotas trinkelėmis, sutvarkyta aplinka
Turto vizija
+37068583389
gintasturtovizija@gmail.com

UAB "Turto vizija"
Minijos g. 39, Klaipėda.
Mob.+370 64831177
El. paštas: infoturtovizija@gmail.com



