NAMAI NAUJOS STATYBOS | KLEMIŠKĖ II | Klaipėdos r. sav.
Klemiškė II | naujos statybos Namas | 4 k. | 80 m² | Klaipėdos r. sav.
Kaina: 140000 € 1750 €/m²
Skelbimo ID: |
1308355 |
Kaina: |
140000 € |
Adresas: |
Klemiškė II, Klaipėdos r. |
Plotas: |
80 m² |
Sklypo plotas: |
5 a. |
Kambarių skaičius: |
4 |
Aukštų |
1 |
Pastatymo metai: |
2021 |
Nauja statyba: |
Taip |
Namo tipas: |
Mūrinis |
Šildymas: |
Dujinis |
Būklė: |
Pilna apdaila |
Aprašymas
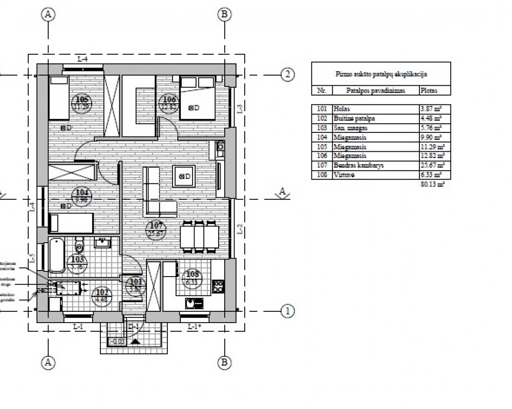
Parduodamas A+ klasės, vieno aukšto, gyvenamasis namas. Klaipėdos raj. sav. Klemiškės II k. Dvarininkų g. Pilnai įrengiame. Pateikiame detalią įrengimo sąmatą, KITA INFORMACIJA PILNAI ĮRENGTAS IKI RAKTO-100 kv.m-- 182 000 EUR. PIRKĖJAMS KOMISINIS MOKESTIS NETAIKOMAS! BENDRA INFORMACIJA - Bendras plotas - 80 kv.m; - Namo tipas - mūrinis; - Kambarių skaičius - 4; - Statybos metai - 2022 m;. .
Bendra informacija
Nauja statyba, prie asfaltuoto kelio, yra miesto transportas, aptvertas tvora, kiemas išklotas trinkelėmis, sutvarkyta aplinka, plastikiniai langai, laminatas, rekuperacijos sistema
Turto vizija
+37068583389
gintasturtovizija@gmail.com

UAB "Turto vizija"
Minijos g. 39, Klaipėda.
Mob.+370 64831177
El. paštas: infoturtovizija@gmail.com



